Thesan
Rekuperators Thesan Aircare ESI Wi-Fi iebūvējams
Nevarēja ielādēt saņemšanas pieejamību
Dalīties








APRAKSTS
Rekuperators Thesan AIRCARE ESI ar WI-FI un tālvadības pulti, sienā iebūvējams
Aircare ESI ir aprīkots ar Wi-Fi (lietotnes vadība Android un iOS) un tālvadības pulti. Tam ir divplūsmu VMC ar entalpijas siltummaini, iekšējām un ārējām taisnajām pieslēgvietām un HEPA filtru. Standarta iekšējais un ārējais temperatūras sensors un relatīvā iekštelpu mitruma sensors.- Horizontāli virs loga;
- Horizontāli zem palodzes;
- Vertikāli gar logu;
- Horizontāli ar iepludināmu paneli - Sienas biezums 396 - 846 mm
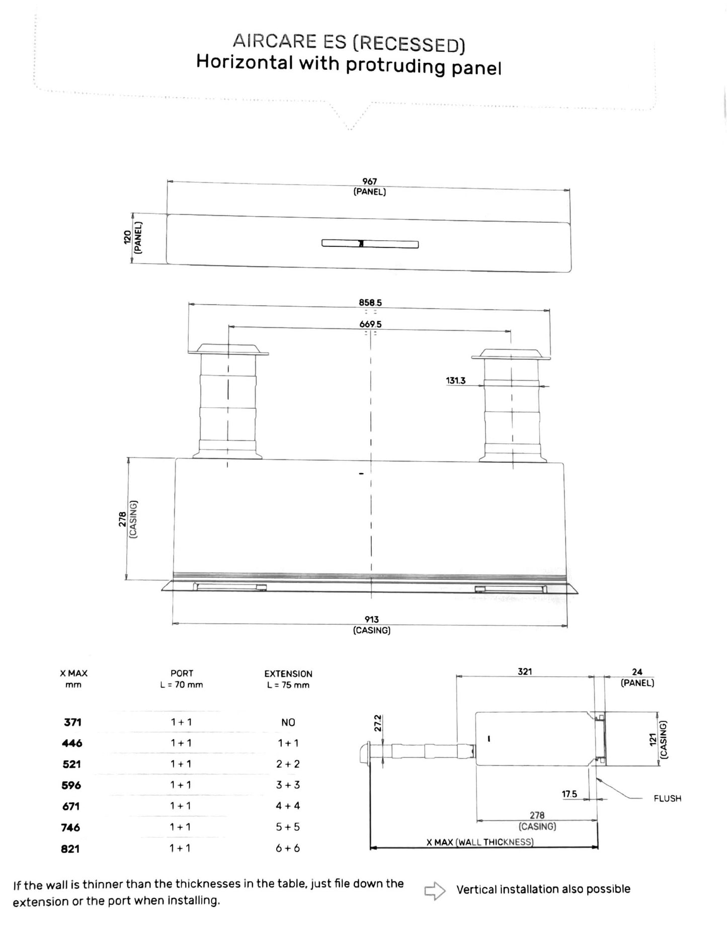
- Horizontāli ar izvirzītu paneli - Sienas biezums 371 - 821 mm
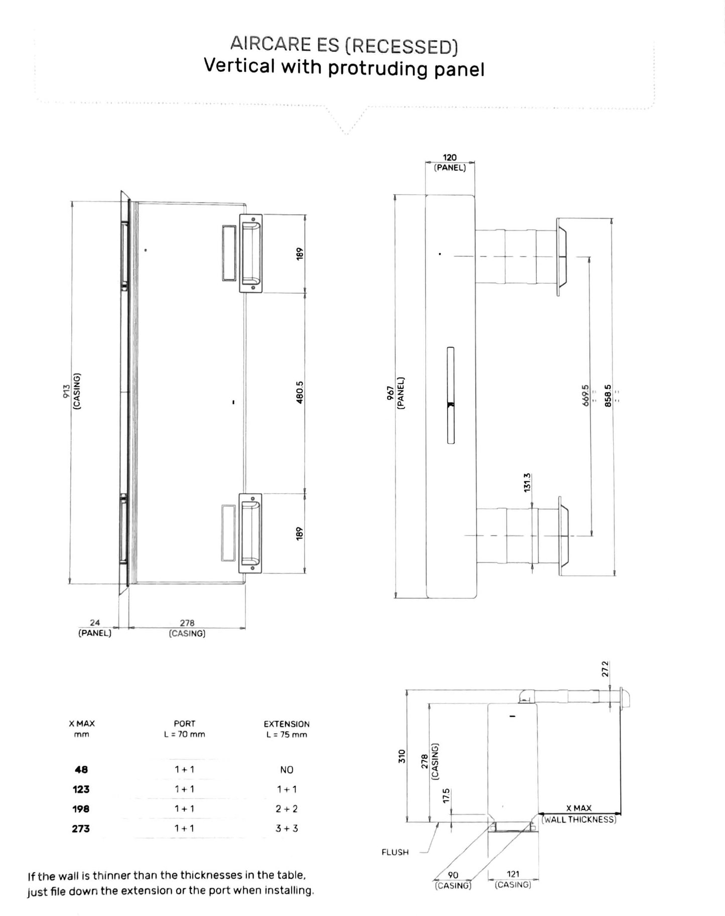
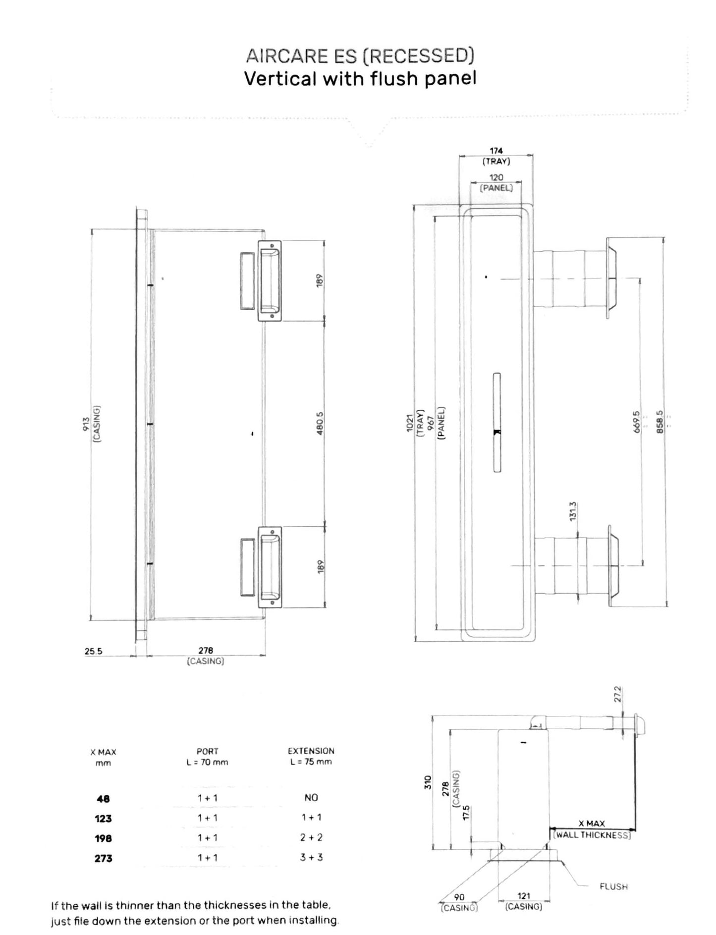
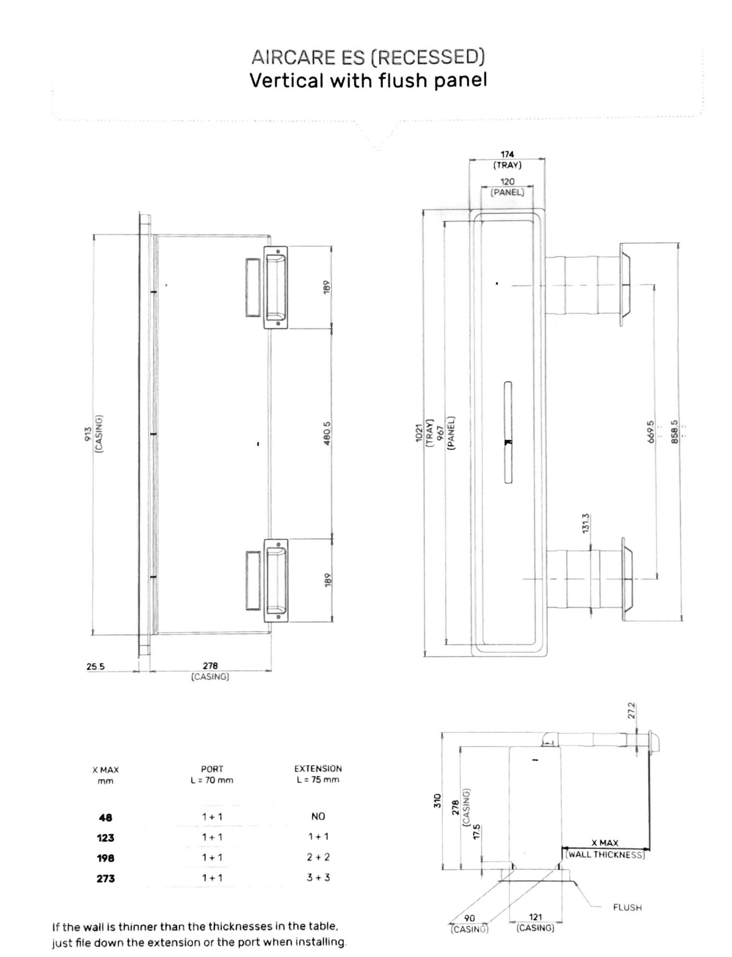
- Vertikāli ar iepludināmu paneli - Sienas biezums 48 - 273 mm
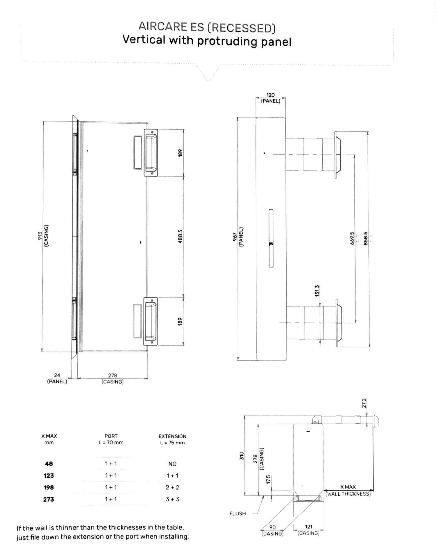
- Vertikāli ar izvirzītu paneli - Sienas biezums 48 - 273 mm
Bezkanālu mehāniskā ventilācijas un gaisa filtrēšanas sistēma ar siltuma atgūšanu un regulējamu pieprasījumu
Aircare ES palīdz nodrošināt pareizu gaisa apmaiņu dzīvojamās ēkās, birojos, viesnīcās un skolās gan jaunbūvēs, gan pēc pārbūves, kā arī palīdz uzlabot energoefektivitātes klases rādītājus.
Aircare ES galvenais mērķis ir nodrošināt pareizu gaisa apmaiņu un efektīvu gaisa filtrēšanu slēgtās telpās, vienlaikus izmantojot siltummaini, lai atgūtu siltumenerģiju no izplūdes gaisa.
Šai ierīcei ir divplūsmu entalpijas siltummainis, kas līdzsvaro gan siltumenerģiju, gan mitruma līmeni starp ienākošo (pieplūdes) un izejošo (izplūdes) gaisa plūsmu. Būtībā tas nodrošina ieplūstošā gaisa temperatūru tuvu iekštelpu temperatūrai, uztur vienmērīgu mitruma līmeni un nodrošina komfortu.
Aircare ES ietver trīskāršu filtru, kas novērš 98 % smalko daļiņu līdz 2,5 µm, kā arī visas PM10, putekšņus, putekļu ērcītes, sporas un pat baktērijas, kas lielākas par 0,4 µm. Tas garantē 82 % siltuma efektivitāti.
Uzstādīšana ar bildēm un aprakstiem soli pa solim>
TEHNISKĀS SPECIFIKĀCIJAS
- Izvēloties atlasi, tiek veikta pilna lapas atsvaidzināšana.